ID CP2189796

Apartament 2 camere, Dedeman, Sibiu

ID CP2189796

118,000 € TVA inclus

Apartament cu 2 camere de vânzare
Hipodrom 3, Sibiu
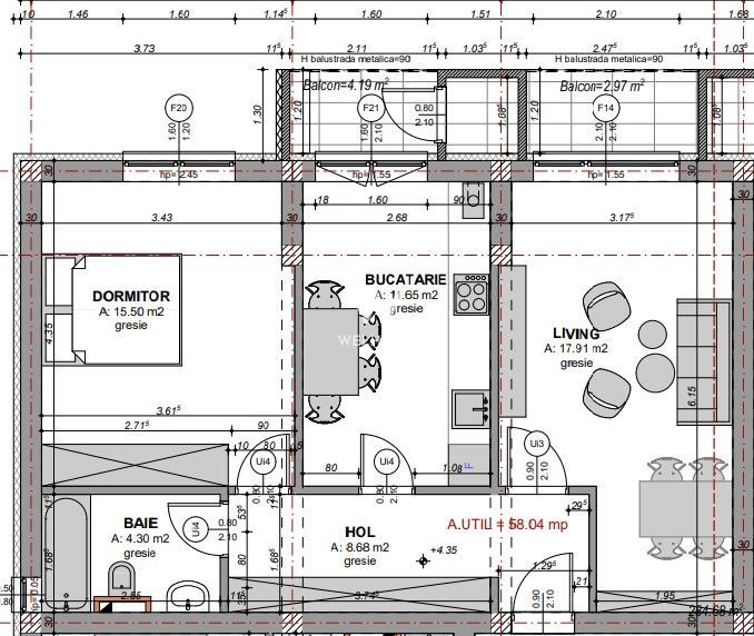
58.83 mp
2024

Apartament cu 2 camere de vanzare, Doamna Stanca, Sibiu

- Locatie in plina dezvoltare in apropiere de Dedeman, Piata Rahovei, Shoping City Mall

- Bloc modern cu un regim de inaltime P+3E

- Suprafata utila: 58 mpu + balcon de 7 mpu

- Compartimentare practica: hol, living ,bucatarie, dormitoar, baie, balcon, camara

- Predare la interior LA ALB: peretii tencuiti mecanizat cu tencuiala bruta pe baza de ciment+glet+ vopsea lavabila alba , sapa semiuscata mecanizata, instalatie electrica cu doze, panou de sigurante, contor de curent individual, instalatii termice cu incalzire prin pardoseala marca SISTEMA ,centrala termica prin condensatie.

- Strada asfaltata si iluminata

- 1 loc de parcare inclus in pret.

- Predare: 2025

PRET: 118.000 euro Tva inclus

Citește mai mult

  • Tip apartament
    Apartament
  • Compartimentare
    Decomandat
  • Număr camere
    2
  • Dormitoare
    2
  • Număr bucătării
    1
  • Număr băi
    2
  • Etaj
    2
  • Suprafață utilă
    58.83 mp
  • Suprafață construită
    70 mp
  • Confort
    1
  • Stare interior
    Nou
  • Anul finisării
    2025
  • Număr balcoane
    1
  • Număr locuri parcare
    1
  • Imobil
    Bloc de apart.
  • Stadiu construcție
    În construcție
  • An construcție
    2024
  • Construcție nouă
    Da
  • De la dezvoltator
    Da
  • Tip construcție
    Cărămidă
  • Număr etaje clădire
    3

Facilități

Apă
Apometre
Bucătărie închisă
Canalizare
CATV
Centrală proprie
Contor căldură
Contor electric
Curent
Gaz
Geamuri termopan
Iluminat stradal
Încălzire prin pardoseală
Internet
Izolație exterioară
Mijloace de transport în comun
Parcare deschisă
Șapă
Străzi asfaltate
Telefon
Ușă intrare metal
Claudiu Drasovean - Welhome Invest
Claudiu Drasovean
Broker Imobiliar

0756033943


Solicită chiar acum o vizionare
Telefon
Sună acum Solicită vizionare
Necesare:

Site-ul nu poate funcționa corect fără aceste cookie-uri. Vezi cookie-urile

Statistică:

Strângem statistici anonime despre voi, vizitatorii unici, pentru a vă îmbunătăți experiența dumneavoastră. Vezi cookie-urile

Marketing:

Pentru a ne promova mai eficient serviciile noastre, folosim cookies pentru a vă identifica și a vă oferi proprietăți și servicii personalizate. Vezi cookie-urile

Acest site folosește cookies, află detalii. Alege ce tipuri de cookies dorești să permitem: