ID CP2391528

Apartament 2 camere, proiect nou - The Lake Home

ID CP2391528

118,740 €

Apartament cu 2 camere de vânzare
Tineretului, Sibiu
53.7 mp
2025

Apartament 2 camere , zona Lacul lui Binder, Sibiu

- Proiect unic in Sibiu

- The Lake Home cuprinde 3 etape de dezvoltare si este compus din 10 blocuri, aproximativ 500 de apartamente si 30 case individuale, 20.000mp de spatii verzi, restaurant, cafenele, zona de agrement, parc si locuri de joaca. Ansamblul este amplasat intr-o zona strategica si foarte cautata, cu acces facil catre punctele de interes major din Sibiu, distanta mica pana in centrul Sibiului, autostrada, DN1, Zona Industriala Vest, viitorul Spital Judetean, statii de autobus, farmacii, scoli si gradinite.

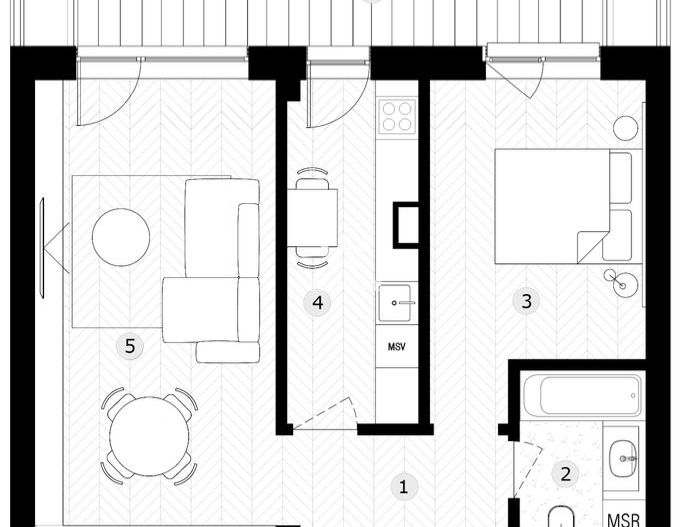
- Suprafata utila apartament: 53.7 mp

- Terasa: 14,4 mp

- Situat la etajul 3 al unui imobil cu un regim de inaltime P+3E+M+P prevazut cu lift

- Hol acces, living, bucatarie, dormitor, baie, balcon

- Interior LA CHEIE: centrala in condensatie, peretii finisati si zugraviti, tamplarie PVC cu geam termopan, usa metalica la intrare, sapa mecanizata elicopterizata, sistem de incalzire in pardoseala, toate utilitatile racordate, contoare de apa, gaz, curent, gresie, faianta, parchet, usi in interior, prize si intrerupatoare.

- Exteriorul se preda LA CHEIE.

PRET: 118,740 € +TVA - COMISION 0%

Ghita-0751775754

Citește mai mult

  • Tip apartament
    Apartament
  • Compartimentare
    Decomandat
  • Număr camere
    2
  • Dormitoare
    1
  • Număr bucătării
    1
  • Număr băi
    1
  • Etaj
    3
  • Suprafață utilă
    53.7 mp
  • Suprafață construită
    65.05 mp
  • Suprafață terasă
    14.4 mp
  • Disponibilitate
    Imediat
  • Confort
    1
  • Stare interior
    Finisat modern
  • Anul finisării
    2026
  • Număr terase
    1
  • Imobil
    Bloc de apart.
  • Stadiu construcție
    În construcție
  • An construcție
    2025
  • Construcție nouă
    Da
  • De la dezvoltator
    Da
  • Tip construcție
    Cărămidă
  • Număr etaje clădire
    3
  • Are mansardă
    Da
  • Are pod
    Da

Facilități

Acces pentru persoane cu dizabilități
Apă
Apometre
Bucătărie deschisă
Calorifere
Canalizare
CATV
Centrală proprie
Contor căldură
Contor electric
Contor gaz
Curent
Ferestre PVC
Garaj subteran
Gaz
Geamuri termopan
Grădină proprie
Iluminat stradal
Internet
Izolație exterioară
Lift
Loc de joacă copii
Magazie
Mijloace de transport în comun
Parcare acoperită
Pază
Șapă
Sistem de alarmă
Străzi asfaltate
Ușă intrare metal
Mihai Grajdan - Welhome Invest
Mihai Grajdan
Broker imobiliar

0745995537


Solicită chiar acum o vizionare
Telefon
Sună acum Solicită vizionare
Necesare:

Site-ul nu poate funcționa corect fără aceste cookie-uri. Vezi cookie-urile

Statistică:

Strângem statistici anonime despre voi, vizitatorii unici, pentru a vă îmbunătăți experiența dumneavoastră. Vezi cookie-urile

Marketing:

Pentru a ne promova mai eficient serviciile noastre, folosim cookies pentru a vă identifica și a vă oferi proprietăți și servicii personalizate. Vezi cookie-urile

Acest site folosește cookies, află detalii. Alege ce tipuri de cookies dorești să permitem: