ID CP2611442

Apartament 3 camere finisat LA CHEIE - Turnisor Sibiu

ID CP2611442

140,000 € TVA inclus

Apartament cu 3 camere de vânzare
Turnisor, Sibiu
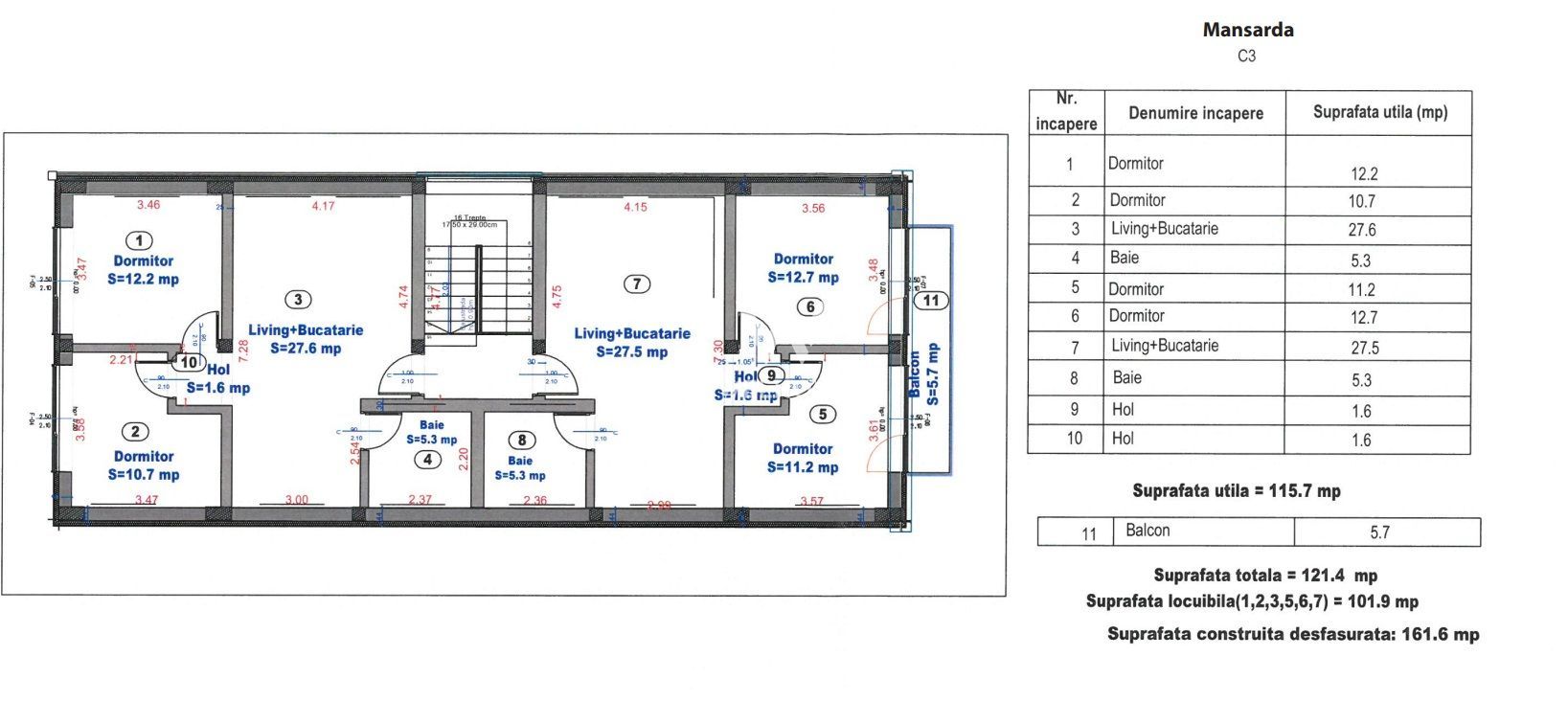
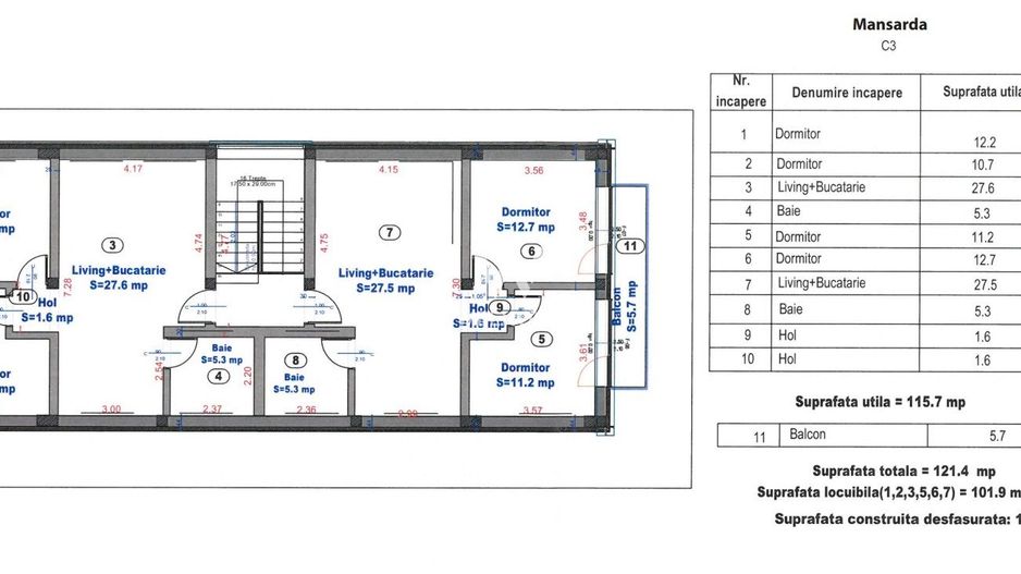
57.4 mp
2024

Descoperă un apartament modern cu 3 camere, situat într-un proiect rezidențial nou din cartierul Turnișor, o zonă liniștită și bine conectată la oraș. Imobilul este intabulat, iar apartamentul se află în curs de finisare, oferind posibilitatea de personalizare a detaliilor interioare.

Suprafață utilă: 57.4 mp

Compartimentare practică:

✔️ 2 dormitoare

✔️ Living cu bucătărie open-space

✔️ Baie cu geam natural de aerisire

Etaj - 2

Facilități suplimentare:

2 locuri de parcare în curte privată, incluse în preț

Încălzire în pardoseală – confort termic ridicat

Finisaje de calitate la interior (la alegere în funcție de stadiul lucrărilor)

Acces rapid către punctele de interes din oraș

Apartament intabulat - predare imediata!

Se acceptă credit ipotecar

Preț: 140.000 €

Pentru vizionări: 0756.033.943 – Claudiu

Citește mai mult

  • Tip apartament
    Apartament
  • Compartimentare
    Decomandat
  • Număr camere
    3
  • Dormitoare
    2
  • Număr bucătării
    1
  • Număr băi
    1
  • Geam la baie
    Da
  • Etaj
    2
  • Suprafață utilă
    57.4 mp
  • Disponibilitate
    Imediat
  • Stare interior
    Finisat modern
  • Număr locuri parcare
    2
  • Imobil
    Bloc de apart.
  • Stadiu construcție
    Finalizată
  • An construcție
    2024
  • Construcție nouă
    Da
  • De la dezvoltator
    Da
  • Tip construcție
    Cărămidă
  • Număr etaje clădire
    1
  • Are mansardă
    Da

Facilități

Apă
Bucătărie deschisă
Canalizare
CATV
Centrală proprie
Curent
Faianță
Gaz
Gresie
Iluminat stradal
Încălzire prin pardoseală
Interfon
Internet
Izolație exterioară
Mijloace de transport în comun
Parcare deschisă
Parchet
Străzi asfaltate
Telefon
Ușă intrare metal
Uși interior lemn
Claudiu Drasovean - Welhome Invest
Claudiu Drasovean
Broker Imobiliar

0756033943


Solicită chiar acum o vizionare
Telefon
Sună acum Solicită vizionare
Necesare:

Site-ul nu poate funcționa corect fără aceste cookie-uri. Vezi cookie-urile

Statistică:

Strângem statistici anonime despre voi, vizitatorii unici, pentru a vă îmbunătăți experiența dumneavoastră. Vezi cookie-urile

Marketing:

Pentru a ne promova mai eficient serviciile noastre, folosim cookies pentru a vă identifica și a vă oferi proprietăți și servicii personalizate. Vezi cookie-urile

Acest site folosește cookies, află detalii. Alege ce tipuri de cookies dorești să permitem: