ID CP1904621

Apartament 4 camere, zona Kaufland -Mall

ID CP1904621

140,500 € TVA inclus

Apartament cu 4 camere de vânzare
Sud, Sibiu
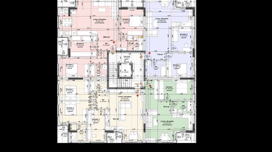
81.5 mp
2024

Apartament 4 camere, str. Doamna Stanca, Sibiu - Comision 0%

- Localizat in zona Kaufland, Mall

- Bloc nou cu un regim de inaltime P+ 6Etaje.

- Suprafata utila: 81.5 mp

- Compartimentare: 3 dormitoare, living cu bucatarie open space, 2 bai, hol

- 2 balcoane tip logie in suprafata totala de 6.3 mp

- Apartamente disponibile la etajele 1-6

- Predarea LA CHEIE: centrala termica cu calorifere, geamuri termopan, pereti gletuiti si cu lavabila, parchet, instalatii electrice, termice, sanitare si contoare, interfon, usa metalica de intrare, gresie, faianta

- Exteriorul se preda LA CHEIE, la fel si casa scarii.

- Parcari delimitate, alocate pentru fiecare apartament, 1 loc fiind inclus in pret

- Aproape de centrele comerciale, scoli, gradinite, clinici, transport in comun.

- Mod plata agreat - Cash sau Credit

PRET: Tva Inclus - COMISION 0%

140.500 Semifinisat

152.000 La Cheie

Citește mai mult

  • Tip apartament
    Apartament
  • Compartimentare
    Decomandat
  • Număr camere
    4
  • Dormitoare
    3
  • Număr bucătării
    1
  • Număr băi
    2
  • Geam la baie
    Da
  • Etaj
    6
  • Suprafață utilă
    81.5 mp
  • Suprafață construită
    96.1 mp
  • Disponibilitate
    Imediat
  • Confort
    1
  • Stare interior
    Finisat modern
  • Anul finisării
    2024
  • Număr balcoane
    2
  • Număr locuri parcare
    1
  • Imobil
    Bloc de apart.
  • Stadiu construcție
    Finalizată
  • An construcție
    2024
  • Construcție nouă
    Da
  • De la dezvoltator
    Da
  • Tip construcție
    Cărămidă
  • Număr etaje clădire
    6

Facilități

Apă
Apometre
Bucătărie deschisă
Calorifere
Canalizare
CATV
Centrală proprie
Contor căldură
Contor electric
Contor gaz
Curent
Gaz
Geamuri termopan
Iluminat stradal
Internet
Izolație exterioară
Lift
Mijloace de transport în comun
Șapă
Străzi asfaltate
Telefon
Ușă intrare metal
Videointerfon
Vopsea lavabilă
Roxana Stoica - Welhome Invest
Roxana Stoica
Broker Imobiliar

0752088381


Solicită chiar acum o vizionare
Telefon
Sună acum Solicită vizionare
Necesare:

Site-ul nu poate funcționa corect fără aceste cookie-uri. Vezi cookie-urile

Statistică:

Strângem statistici anonime despre voi, vizitatorii unici, pentru a vă îmbunătăți experiența dumneavoastră. Vezi cookie-urile

Marketing:

Pentru a ne promova mai eficient serviciile noastre, folosim cookies pentru a vă identifica și a vă oferi proprietăți și servicii personalizate. Vezi cookie-urile

Acest site folosește cookies, află detalii. Alege ce tipuri de cookies dorești să permitem: