ID CP2391640

Apartament 4 camere, terasa 23mp, proiect nou, Sibiu

ID CP2391640

219,402 €

Apartament cu 4 camere de vânzare
Tineretului, Sibiu
94 mp
2025

Apartament 4 camere decomandat , zona Lacul lui Binder, Sibiu

- Proiect unic in Sibiu

-Cuprinde 3 etape de dezvoltare si este compus din 10 blocuri, aproximativ 500 de apartamente si 30 case individuale, 20.000mp de spatii verzi, restaurant, cafenele, zona de agrement, parc si locuri de joaca.

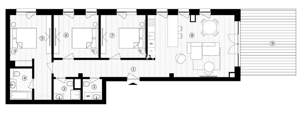
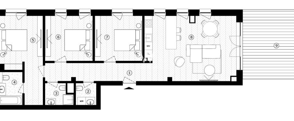
- Suprafata utila apartament: 94 mp

- Terasa 23.1 mp

- Situat la etajul 4 unui imobil cu un regim de inaltime P+3E+M+P prevazut cu lift

Compartimentare:

Hol acces, living cu bucatarie, trei dormitoare, trei bai, terasa

Stadiu de predare:

- Interior finisat LA ALB: centrala in condensatie, peretii finisati si zugraviti, tamplarie PVC cu geam termopan, usa metalica la intrare, sapa mecanizata elicopterizata, sistem de incalzire in pardoseala, toate utilitatile racordate, contoare de apa, gaz, curent.

- Exteriorul se preda LA CHEIE.

PRET: 219,402 Euro +TVA

Tel 0745995537

Citește mai mult

  • Tip apartament
    Apartament
  • Compartimentare
    Decomandat
  • Număr camere
    4
  • Dormitoare
    3
  • Număr bucătării
    1
  • Număr băi
    3
  • Etaj
    4
  • Suprafață utilă
    94 mp
  • Suprafață construită
    115.8 mp
  • Suprafață terasă
    23.1 mp
  • Disponibilitate
    Imediat
  • Orientare
    Sud-Vest
  • Confort
    1
  • Stare interior
    Semifinisat
  • Anul finisării
    2026
  • Număr terase
    1
  • Număr locuri parcare
    1
  • Imobil
    Bloc de apart.
  • Stadiu construcție
    În construcție
  • An construcție
    2025
  • Construcție nouă
    Da
  • De la dezvoltator
    Da
  • Tip construcție
    Cărămidă
  • Număr etaje clădire
    4
  • Are mansardă
    Da
  • Are pod
    Da

Facilități

Acces pentru persoane cu dizabilități
Apă
Apometre
Bucătărie deschisă
Calorifere
Canalizare
CATV
Centrală proprie
Contor căldură
Contor electric
Contor gaz
Curent
Facilități sportive
Ferestre PVC
Garaj subteran
Gaz
Geamuri termopan
Iluminat stradal
Internet
Izolație exterioară
Lift
Loc de joacă copii
Magazie
Mijloace de transport în comun
Nemobilat
Parcare acoperită
Pază
Șapă
Senzor de fum
Sistem de alarmă
Străzi asfaltate
Ușă intrare metal
Vedere panoramică
Vedere spre munte
Vedere spre oraș
Vopsea lavabilă
Mihai Grajdan - Welhome Invest
Mihai Grajdan
Broker imobiliar

0745995537


Solicită chiar acum o vizionare
Telefon
Sună acum Solicită vizionare
Necesare:

Site-ul nu poate funcționa corect fără aceste cookie-uri. Vezi cookie-urile

Statistică:

Strângem statistici anonime despre voi, vizitatorii unici, pentru a vă îmbunătăți experiența dumneavoastră. Vezi cookie-urile

Marketing:

Pentru a ne promova mai eficient serviciile noastre, folosim cookies pentru a vă identifica și a vă oferi proprietăți și servicii personalizate. Vezi cookie-urile

Acest site folosește cookies, află detalii. Alege ce tipuri de cookies dorești să permitem: