ID CP3036824

Casă nouă | 193 mp | Garaj dublu | Curte 315 mp | Mobilată – Șura Mare

ID CP3036824

279,000 €

Casă / Vilă cu 4 camere de vânzare
Sura Mare
193 mp
2024

Îți imaginezi dimineața cu cafeaua pe terasa de 17 mp, în timp ce copiii se joacă în siguranță în curtea din spate? Această casă individuală, construită în 2024, face exact asta posibil – la doar 5 minute de Sibiu, într-o zonă liniștită, exclusiv rezidențială.

CE PRIMEȘTI:

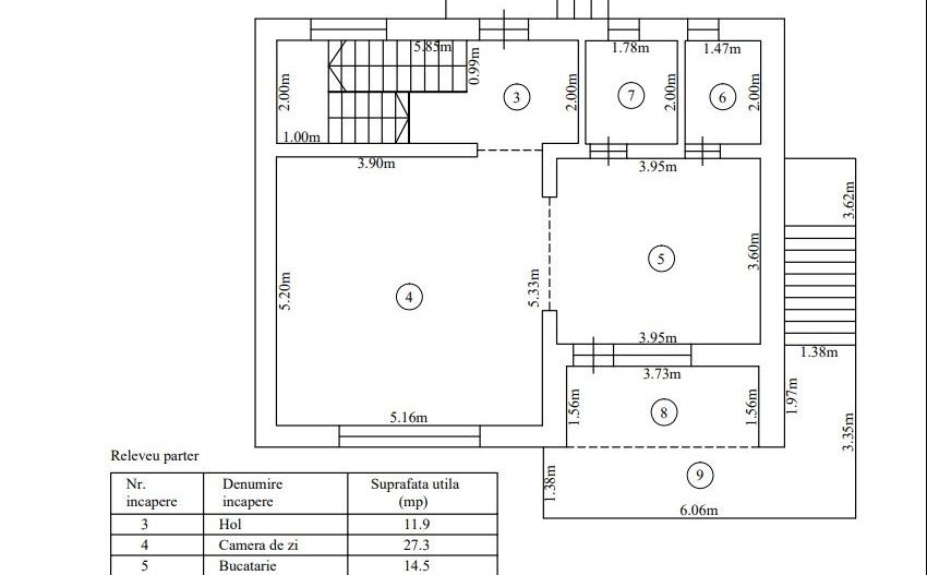
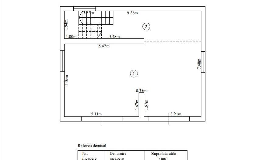
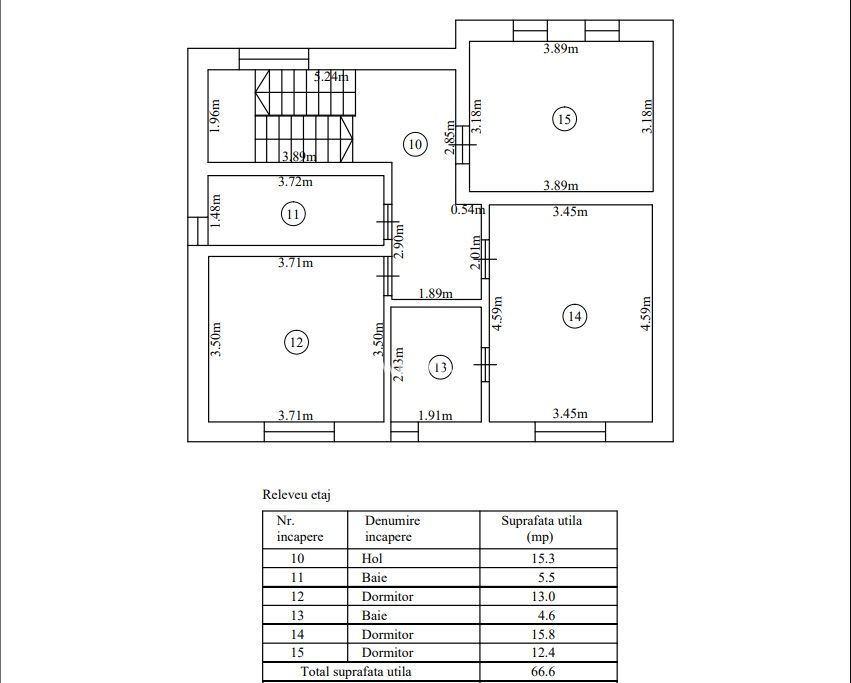
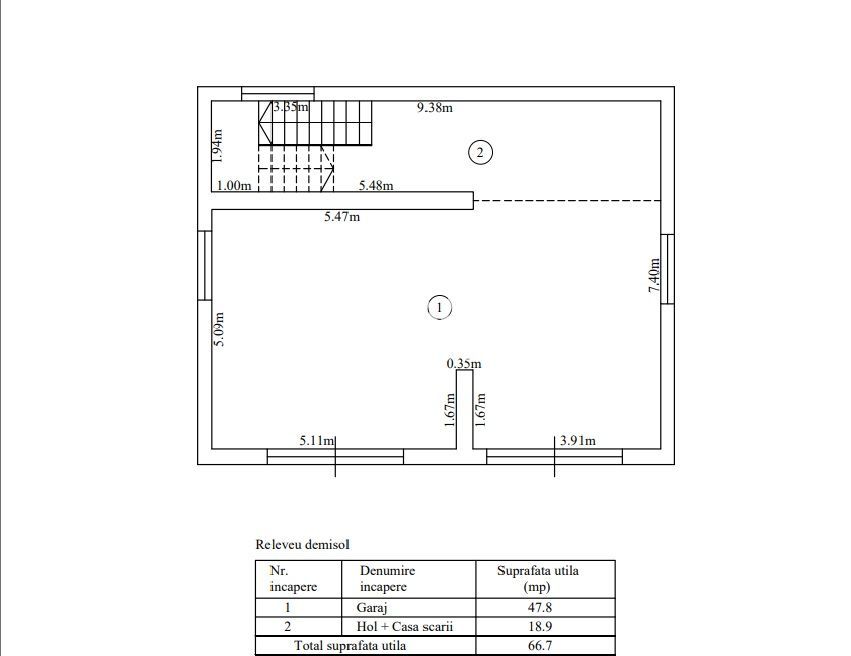
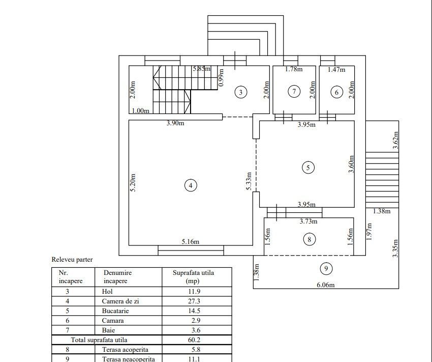
• 193 mp utili pe 3 niveluri (demisol, parter, etaj + pod)

• Teren 400 mp – curte liberă de 315 mp în spate, complet privată

• Garaj pentru 2 mașini + 2 locuri parcare exterioare

• Terasă generoasă de 17 mp

• 3 dormitoare (unul cu baie proprie), living open space, 2 băi

• Încălzire în pardoseală pe toată suprafața

• Aer condiționat inclus

PREDARE IMEDIATĂ:

Casa se vinde mobilată și utilată complet (excepție: mobilier camera copilului). Te muți fără niciun stres.

LOCAȚIE:

Șura Mare – Viile Sibiului. Acces rapid la Prima Shopping Center, școli, mijloace de transport. Vedere spre munți și spre oraș.

Se acceptă credit ipotecar.

Preț: 279.000 euro

Sună sau scrie pentru o vizionare – disponibilitate imediată.

Citește mai mult

  • Număr camere
    4
  • Dormitoare
    3
  • Număr bucătării
    1
  • Număr băi
    2
  • Geam la baie
    Da
  • Număr terase
    1
  • Număr garaje
    2
  • Număr locuri parcare
    4
  • Disponibilitate
    Imediat
  • Tip casă
    Individual
  • Suprafață utilă
    193 mp
  • Suprafață teren
    400 mp
  • Suprafață curte
    315 mp
  • Suprafață terasă
    17 mp
  • Acoperiș
    Țiglă
  • Stadiu construcție
    Finalizată
  • An construcție
    2024
  • Construcție nouă
    Da
  • La revânzare
    Da
  • Tip construcție
    Cărămidă
  • Număr etaje clădire
    1
  • Număr subsoluri
    1
  • Are pod
    Da

Facilități

Acoperiș
Aer condiționat
Apă
Apometre
Bucătărie deschisă
Bucătărie mobilată
Cabină de duș
Cadă
Canalizare
CATV
Centrală proprie
Contor căldură
Contor electric
Contor gaz
Curent
Curte
Debara
Dressing
Faianță
Ferestre PVC
Frigider
Garaj
Gaz
Gresie
Hotă
Iluminat stradal
Încălzire prin pardoseală
Internet
Izolație exterioară
Mașină de spălat rufe
Mașină de spălat vase
Mijloace de transport în comun
Mochetă
Parchet
Străzi asfaltate
Telecomandă poartă garaj
Telefon
TV
Ușă intrare PVC
Uși interior MDF
Vedere spre munte
Vedere spre oraș
Wireless
Claudiu Drasovean - Welhome Invest
Claudiu Drasovean
Broker Imobiliar

0756033943


Solicită chiar acum o vizionare
Telefon
Sună acum Solicită vizionare
Necesare:

Site-ul nu poate funcționa corect fără aceste cookie-uri. Vezi cookie-urile

Statistică:

Strângem statistici anonime despre voi, vizitatorii unici, pentru a vă îmbunătăți experiența dumneavoastră. Vezi cookie-urile

Marketing:

Pentru a ne promova mai eficient serviciile noastre, folosim cookies pentru a vă identifica și a vă oferi proprietăți și servicii personalizate. Vezi cookie-urile

Acest site folosește cookies, află detalii. Alege ce tipuri de cookies dorești să permitem: