ID CP2682884

Casa individuala, teren 900mp, Sibiu

ID CP2682884

599,000 €

Casă / Vilă cu 5 camere de vânzare
Calea Dumbravii, Sibiu
159 mp
1950

Va prezentam o casa individuala situata intr-o zona foarte bine cotata a Sibiului, Calea Dumbravii/ Bulevardul Vasile Milea.

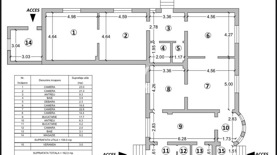
Suprafata utila: 159mp

Suprafata teren: 900mp

Curte libera: aprox 700mp

Compartimentare (vezi schita):5 camere spatioase, 2 bucatarii, 2 bai, camara, debara, antreu, pod, pivnita

2 intrari cu acces auto

De asemenea in curtea din spate este amenajata o veranda din care se face si accesul inn pivnita.

O proprietate bine amplasata cu un potential foarte mare. Este locuibila insa necesita modernizare. Merita vazuta!

Se pune la dispozitie si certificat de urbanism. Regim de inaltime acceptat: D+P+E+M

Pret: 599000 euro

Detalii si vizionari: 0752.088.381- Roxana

Citește mai mult

  • Număr camere
    5
  • Dormitoare
    3
  • Număr bucătării
    2
  • Număr băi
    2
  • Geam la baie
    Da
  • Număr terase
    2
  • Număr locuri parcare
    4
  • Disponibilitate
    Imediat
  • Tip casă
    Individual
  • Stare interior
    Finisat clasic
  • Anul finisării
    2005
  • Suprafață utilă
    159 mp
  • Suprafață construită
    220 mp
  • Suprafață construită la sol (Amprentă)
    190.0 mp
  • Suprafață teren
    900 mp
  • Suprafață curte
    700 mp
  • Suprafață curte liberă
    700 mp
  • Deschidere
    24 m
  • Acoperiș
    Țiglă
  • Stadiu construcție
    Finalizată
  • An construcție
    1950
  • Tip construcție
    Cărămidă
  • Număr subsoluri
    1
  • Are pod
    Da

Facilități

Apă
Apometre
Boxă la subsol
Cadă
Calorifere
Canalizare
CATV
Centrală proprie
Contor căldură
Contor electric
Contor gaz
Curent
Curte
Debara
Faianță
Gaz
Geamuri termopan
Grădină proprie
Gresie
Hotă
Iluminat stradal
Internet
Magazie
Mijloace de transport în comun
Nemobilat
Parcare biciclete
Parcare deschisă
Parchet
Pivniță
Senzor de fum
Sobă / Teracotă
Străzi asfaltate
Telefon
Ușă intrare lemn
Uși interior lemn
Vedere panoramică
Vedere spre oraș
Vopsea lavabilă
WC Serviciu
Zonă pentru barbeque
Roxana Stoica - Welhome Invest
Roxana Stoica
Broker Imobiliar

0752088381


Solicită chiar acum o vizionare
Telefon
Sună acum Solicită vizionare
Necesare:

Site-ul nu poate funcționa corect fără aceste cookie-uri. Vezi cookie-urile

Statistică:

Strângem statistici anonime despre voi, vizitatorii unici, pentru a vă îmbunătăți experiența dumneavoastră. Vezi cookie-urile

Marketing:

Pentru a ne promova mai eficient serviciile noastre, folosim cookies pentru a vă identifica și a vă oferi proprietăți și servicii personalizate. Vezi cookie-urile

Acest site folosește cookies, află detalii. Alege ce tipuri de cookies dorești să permitem: