ID CP1908022

Cladire birouri COMPLET AMENAJATA,zona Bvdl Victoriei, Sibiu

ID CP1908022

600,000 € + 21% TVA

Spațiu de birouri de vânzare
Sub Arini, Sibiu
280 mp

Spatiu de birouri de vanzare - Zona Bulevardul Victoriei(vis a vis de Parcul Subarini).

Spatiul de vanzare este complet renovat(2023), este modern amenajat si dispune de finisaje de calitate.

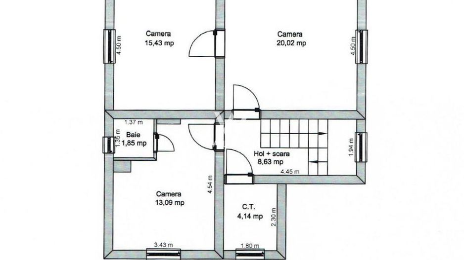
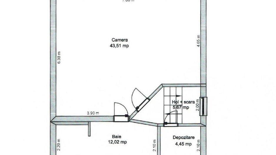
Spatiul de birouri are 8 camere, 5 bai si o bucatarie si o zona mare de luat masa. Suprafata totala construita este de 350 mp, iar suprafata utila este 280 mp(***vezi schita). Cladirea beneficiaza de teren 180 mp, iar curtea libera are 80 mp.

Detaliii spatiu:

- Destinație schimbată - funcționează ca spațiu de birouri

- complet renovat și amenajat

- exteriorul a fost refăcut complet (spațiul a fost izolat, iar fatada a fost facuta în toamna anului 2023)

- zona de relaxare amenajata, pavata, decorata cu plante ornamentale

- locatie centrala, vis a vis de parcul Sub Arini

- jaluzele tip rulou la fiecare fereastra

- suprafata utila mare, practic compartimentata

- baie pe fiecare nivel al cladirii(la parter sunt 2 băi)

- sistem de aer conditionat in fiecare incapere

- complet mobilat (au fost create numeroase spatii de depozitare, dulapuri, etajere)

- bucatarie complet mobilata si utilata

Compartimentare:

Demisol: 2 camere, bucatarie, spatiu centrala si 1 toaleta

Parter: 2 camere, hol larg pentru receptie si 2 toalete

Etaj: 3 camere, hol, 1 toaleta si o arhiva complet amenajata

Mansarda: 1 camera mare, spatiu de depozitare si 1 baie.

Spațiul este pretabil pentru orice tip de business, întrucât are suprafață utilă mare și este compartimentat practic. Cladirea este amenajata modern si NU necesita investitii. Exteriorul a fost izolat complet si zugravit.

Aflat în inima Sibiului, acest spațiu de birouri este perfect poziționat pentru a satisface nevoile unei afaceri în plină dezvoltare. Cu acces ușor la principalele artere de transport, la restaurante, și la alte facilități urbane, acesta ofera un mediu de lucru confortabil.

Data de predare: Spatiul de birouri va fi predat in 2 saptamani de la semnarea contractului de vanzare.

Pret: 600,000 + TVA. Daca proprietatea va fi achitionata de o persoana juridica, TVA-ul este 0.

Detalii si vizionari: 0752.088.381 -Roxana

*Comision client 1% din valoarea de tranzactionare

Citește mai mult

  • Tip imobil
    Clădire birouri
  • Clasă birouri
    A
  • Număr camere
    10
  • Număr băi
    5
  • Suprafață construită
    350 mp
  • Număr terase
    2
  • Suprafață utilă
    280 mp
  • Disponibilitate
    Imediat
  • Suprafață totală birouri
    280 mp
  • Parcări suprafață
    5
  • Număr etaje clădire
    2
  • Are mansardă
    Da

Facilități

Gresie
Grupuri sanitare amenajate și utilate
Internet
Mochetă
Parcare deschisă
Parchet
Recepție
Sistem climatizare 4 țevi
Stație de autobuz în apropiere
Telefon
Vedere spre oraș
Roxana Stoica - Welhome Invest
Roxana Stoica
Broker Imobiliar

0752088381


Solicită chiar acum o vizionare
Telefon
Sună acum Solicită vizionare
Necesare:

Site-ul nu poate funcționa corect fără aceste cookie-uri. Vezi cookie-urile

Statistică:

Strângem statistici anonime despre voi, vizitatorii unici, pentru a vă îmbunătăți experiența dumneavoastră. Vezi cookie-urile

Marketing:

Pentru a ne promova mai eficient serviciile noastre, folosim cookies pentru a vă identifica și a vă oferi proprietăți și servicii personalizate. Vezi cookie-urile

Acest site folosește cookies, află detalii. Alege ce tipuri de cookies dorești să permitem: